Siirry sisältöön

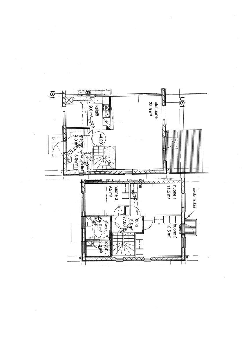
Rivitalo, 95 m²

Pori, Vanhakoivisto

Rauhallisella ja suositulla omakotialueella hyväkuntoinen rivitalokoti. Laadukkaan asumisen takaavat hyvä varustelu mm. huoneistokohtainen ilmanvaihto lämmön talteeotolla, parkettilattiat, astianpesukone, 2x wc, ulkovarasto ja autokatos asunnon edessä. Lemmikki neuvoteltavissa. LÄMMITYS SISÄLTYY VUOKRAAN, kaukolämpö.

Asunnon tiedot

Perustiedot
Sijainti Vanhakoivisto
Ainontie 1, B 1
Pori, 28370
Vapautuminen 1.5.2026
Tyyppi rivitalo
Huoneistotyyppi 4 h
Vuokrasopimus toistaiseksi (Huom ! vuoden sopimussakkoehto.)
Vuokratakuu 1kk+hlö tai 2kk
Rakennusvuosi 2013
Yleiskunto hyvä
Kuvaus 4h+k+s+khh+wc
Asuinpinta-ala 95 m²
Pinta-ala 95 m²
Tupakointi sallittu Ei
Tilat ja varustelu kaapeli-tv, , oma sauna, kaapeli-tv, Terassi
Kylpyhuone suihkuseinä, pesukoneliitäntä, lattialämmitys, suihku, peilikaappi
Lämmitys kaukolämpö
Kustannukset
Vuokra 1000 € / kk
Vesimaksu 23 € / kk / hlo
Vesimaksun laskutusperuste henkilöluvun mukaan
Lisätietoja maksuista Sähkö kuluksen mukaan, oma sopimus. Vuoden sopimussakkoehto.
Keittiö
Keittiövarusteet liesituuletin, mikroaaltouuni, astianpesukone
Kylmälaitteet jääkaappi/pakastin
Liesi keraaminen
Materiaalit
Kylpyhuoneen seinät kaakeli
Kylpyhuoneen lattia laatta
Keittiön lattia parketti
Olohuoneen lattia parketti

Lisätiedot ja hakeminen

Soita meille ja kerromme lisää kohteesta.

Voit jättää asuntohakemuksen alla näkyvällä lomakeella.

Asuntohakemus

    Asunnon tiedot

    Hakija yhteystiedot

    Hakijan tiedot

    Henkilötietojen käsittely